д. Козенки, Истринский р-н.
18 км. Новорижского шоссе
д. Козенки, Истринский р-н.
18 км. Новорижского шоссе

КП Сердце Риги
Коттеджный поселок Сердце РИГИ
Сердце Риги
Riga-heart

КОТТЕДЖНЫЙ ПОСЁЛОК ПРЕМИУМ-КЛАССА

В гармонии с природой, в согласии с собой!

LOCATION LOCATION LOCATION LOCATION LOCATION
ЗАГОРОДНАЯ ЖИЗНЬ С ГОРОДСКИМ КОМФОРТОМ

На 18-м километре Новорижского шоссе, в стороне от суеты, расположен коттеджный поселок «Сердце Риги». Стремительная дорога в город и насыщенная инфраструктура района создают идеальный баланс для жизни. Это гармония столичного ритма и загородного спокойствия.

17
МИНУТ
от МКАД
25
МИНУТ
до Москва-сити
35
МИНУТ
до центра

В 10 минутной доступности есть всё для комфортной жизни: респектабельные школы, современные клиники, изысканные рестораны и торговые центры. Инфраструктура и локация создают идеальный баланс цивилизации и загородного уединения.

ArchitectureI ArchitectureI ArchitectureI

Гармоничная архитектура, основанная на Васту. Мы проектировали не просто дома, а единое пространство для жизни, где все подчинено принципам гармонии с природой. Современный стиль, экологичные материалы и точные расчеты расположения наполнят ваш дом светом, а жизнь — спокойствием и равновесием.

ЭНЕРГИЯ ПРОСТРАНСТВА
RESIDENCE RESIDENCE RESIDENCE RESIDENCE
Три типа резиденций, олицетворяющие мощь и гармонию природных стихий, формируют архитектурный облик проекта. Принципы осознанного потребления и единства с природой плавно пронизывают всю территорию: от выразительного КПП до уютных общественных пространств и благоустроенных участков. Это цельный мир, где каждая деталь, от выбора материалов до организации пространства, создает неповторимую атмосферу осмысленного и совершенного проживания.
ГАРМОНИЯ ПРИРОДНЫХ СТИХИЙ
Для перемещения по ген. плану двигайте изображение влево-вправо
Резиденция №8
Статус - забронирован
Участок - 8,07 сот.
Пл. дома - 348 кв.м
Резиденция №10
Статус - в продаже
Участок - 8,08 сот.
Пл. дома - 348 кв.м
Резиденция №12
Статус - в продаже
Участок - 8,09 сот.
Пл. дома - 348 кв.м
Резиденция №14
Статус - в продаже
Участок - 8,09 сот.
Пл. дома - 348 кв.м
Резиденция №16
Статус - под запрос
Участок - 8,16 сот.
Пл. дома - 348 кв.м
Резиденция №17
Статус - забронирован
Участок - 8,41 сот.
Пл. дома - 379 кв.м

Прогулочная аллея

Спортивная площадка
Дополнительный КПП
Падел корт
Резиденция №2
Статус - в продаже
Участок - 8,14 сот.
Пл. дома - 348 кв.м
Резиденция №4
Статус - в продаже
Участок - 8,11 сот.
Пл. дома - 348 кв.м
Резиденция №6
Статус - в продаже
Участок - 8,06 сот.
Пл. дома - 348 кв.м
Резиденция №11
Статус - в продаже
Участок - 8,14 сот.
Пл. дома - 379 кв.м
Резиденция №13
Статус - в продаже
Участок - 8,17 сот.
Пл. дома - 379 кв.м
Резиденция №15
Статус - в продаже
Участок - 8,46 сот.
Пл. дома - 379 кв.м
Резиденция №18
Статус - под запрос
Участок - 8,02 сот.
Пл. дома - 348 кв.м
Резиденция №20
Статус - под запрос
Участок - 8,02 сот.
Пл. дома - 348 кв.м
Резиденция №22
Статус - под запрос
Участок - 8,01 сот.
Пл. дома - 348 кв.м
Резиденция №19
Статус - под запрос
Участок - 8,14 сот.
Пл. дома - 379 кв.м
Резиденция №21
Статус - под запрос
Участок - 8,04 сот.
Пл. дома - 379 кв.м
Резиденция №23
Статус - под запрос
Участок - 8,09 сот.
Пл. дома - 379 кв.м
Центральная аллея
Резиденция №27
Статус - в продаже
Участок - 9,26 сот.
Пл. дома - 348 кв.м
Резиденция №29
Статус - в продаже
Участок - 7,08 сот.
Пл. дома - 379 кв.м
Резиденция №31
Статус - под запрос
Участок - 9,04 сот.
Пл. дома - 379 кв.м
Резиденция №33
Статус - под запрос
Участок - 10,5 сот.
Пл. дома - 379 кв.м
Резиденция №39
Статус - под запрос
Участок - 8,36 сот.
Пл. дома - 379 кв.м
Резиденция №38
Статус - под запрос
Участок - 8,12 сот.
Пл. дома - 379 кв.м
Резиденция №37
Статус - под запрос
Участок - 7,93 сот.
Пл. дома - 348 кв.м
Резиденция №36
Статус - под запрос
Участок - 8,13 сот.
Пл. дома - 348 кв.м
Гостевой паркинг
Гостевой паркинг
Гостевой паркинг
Общественные теплицы
Банный комплекс
Библиотека в каминном зале
Детские площадки
Резиденция №1
Статус - в продаже
Участок - 13,8 сот.
Пл. дома - 379 кв.м
Резиденция №3
Статус - забронрован
Участок - 8,72 сот.
Пл. дома - 379 кв.м
Резиденция №5
Статус - в продаже
Участок - 8,72 сот.
Пл. дома - 348 кв.м
Резиденция №7
Статус - в продаже
Участок - 7,52 сот.
Пл. дома - 348 кв.м
Резиденция №9
Статус - в продаже
Участок - 7,70 сот.
Пл. дома - 379 кв.м
Резиденция №24
Статус - в продаже
Участок - 7,54 сот.
Пл. дома - 348 кв.м
Резиденция №25
Статус - в продаже
Участок - 8,73 сот.
Пл. дома - 348 кв.м
Резиденция №25
Статус - в продаже
Участок - 7,69 сот.
Пл. дома - 348 кв.м
Резиденция №28
Статус - забронирован
Участок - 7,27 сот.
Пл. дома - 317 кв.м
Резиденция №30
Статус - забронирован
Участок - 7,09 сот.
Пл. дома - 317 кв.м
Резиденция №32
Статус - забронирован
Участок - 7,04 сот.
Пл. дома - 317 кв.м
Резиденция №34
Статус - забронирован
Участок - 7,09 сот.
Пл. дома - 317 кв.м
Главный КПП с кофейней и фермерской лавкой
Резиденция №35
Статус - под запрос
Участок - 9,2 сот.
Пл. дома - 379 кв.м
Воркаут зона
Познакомьтесь с «Сердце Риги» ближе
Нажимая на кнопку, вы принимаете политику конфиденциальности и даете согласие на обработку персональных данных
«Сердце Риги» — это место, где хочется жить, творить и развиваться. Здесь царит особая атмосфера — комфортная, энергичная и вдохновляющая. Это ваш шанс найти себя и наслаждаться каждым днём.
Infrastructure Infrastructure Infrastructure
Пространство, где рождается ваш стиль жизни
100%
Уровень осознанности
ЖИЗНЬ БЕЗ РЕЖИМА ОЖИДАНИЯ
Здесь можно наконец выдохнуть: ощутить единение с природой и замедлить время. А развитая инфраструктура посёлка делает этот побег от суеты по-настоящему комфортным — всё предусмотрено для того, чтобы ваша осознанная жизнь была наполнена не только красотой, но и удобством.
Библиотека в каминном зале
Вдвамтвдатмловатмдвм
Ваше личное пространство релакса: банный комплекс с купелью и зоной отдыха станет еще одним преимуществом жизни в нашем поселке.
Банный комплекс
В поселке появится отдельная библиотека в каминном зале, где можно погрузиться в мир книг под потрескивание дров и насладиться атмосферой тишины и уединения.

Падел корт
Для любителей активного отдыха в поселке будет построен современный падел-корт.

Кофейня и фермерская лавка
В самом сердце поселка вас ждет уютное фермерская лавка и кафе, где готовят ароматный кофе и свежую выпечку из экологичных продуктов, с заботой о вашем здоровье.
СОЛНЕЧНЫЕ
БАТАРЕИ
ESG - ПОВЕСТКА
РАЗДЕЛЬНЫЙ СБОР МУСОРА
КАНГЕН ФИЛЬТР В КАЖДЫЙ ДОМ
ЗАРЯДКА ДЛЯ
ЭЛЕКТРОКАРОВ
«Сердце Риги» — коттеджный посёлок, построенный по национальному стандарту зелёного строительства. Здесь внедряется ESG-повестка: энергосбережение, раздельный сбор мусора и системы очистки воды.
THE PROJECT TEAM THE PROJECT TEAM
«Сердце Риги» бьется в унисон благодаря слаженному пульсу его создателей: видению вдохновителей, мастерству строителей и стабильности государственного банка. Это проект, где осознанный выбор каждого участника воплощается в вашем доме — месте силы и гармонии.
СО-ТВОРЦЫ СРЕДЫ
ЗАСТРОЙЩИК
ПРОЕКТНОЕ
ФИНАНСИРОВАНИЕ
ГЕНЕРАЛЬНЫЙ ПОДРЯДЧИК
ANANTA — ДЕВЕЛОПЕР, СОЗДАЮЩИЙ КОМФОРТНЫЕ ПРОСТРАНСТВА ДЛЯ ЖИЗНИ, ОБЪЕДИНЯЯ СОВРЕМЕННЫЕ ТЕХНОЛОГИИ И ЭКОЛОГИЧНЫЕ РЕШЕНИЯ ДЛЯ УСТОЙЧИВОГО БУДУЩЕГО
КРУПНЕЙШИЙ ФИНАНСОВЫЙ ИНСТИТУТ СТРАНЫ, КОТОРЫЙ ЗАНИМАЕТСЯ РАЗВИТИЕМ ЖИЛИЩНОЙ СФЕРЫ. ЗА 28 ЛЕТ ДЕЯТЕЛЬНОСТИ СТАЛ ГЛАВНОЙ ПЛАТФОРМОЙ, ОБЪЕДИНЯЮЩЕЙ И ПОДДЕРЖИВАЮЩЕЙ УЧАСТНИКОВ РЫНКА НЕДВИЖИМОСТИ — ДЕВЕЛОПЕРОВ, МАЛЫЙ И СРЕДНИЙ БИЗНЕС, ФИЗИЧЕСКИХ ЛИЦ
СТРОИТЕЛЬНО-ИНВЕСТИЦИОННАЯ КОМПАНИЯ С 20-ЛЕТНИМ ОПЫТОМ, ИМЕЮЩАЯ В СВОЕМ ПОРТФЕЛЕ БОЛЕЕ 50 УСПЕШНО РЕАЛИЗОВАННЫХ ПРОЕКТОВ В СФЕРЕ ЖИЛОЙ И КОММЕРЧЕСКОЙ НЕДВИЖИМОСТИ, А ТАКЖЕ ОБЪЕКТЫ СОЦИАЛЬНОГО И КУЛЬТУРНОГО НАЗНАЧЕНИЯ
Любая информация, представленная на этом сайте, носит исключительно ознакомительный характер, ни при каких обстоятельствах не является публичной офертой, определяемой положениями статьи 437 ГК РФ. Все представленные материалы являются ориентировочными, и в них могут быть внесены любые изменения.
ОФИС ПРОДАЖ: Московская обд., д. Козенки, ул. Парковая, д.16
sales@riga-heart.ru + 7 495 004 70 00
ЗАКАЖИТЕ ОБРАТНЫЙ ЗВОНОК
Наш менеджер свяжется с Вами в течении 15 минут
Тип резиденции S (317 кв.м.)
Материалы
Железобетон, теплая керамика (Paroterm 510), декоративная штукатурка, планкен термоясень, керамогранит, композитная черепица (Gerrard).
Общая площадь
317,7 м²
Парковочные места
2
Количество этажей
2
Планировка
Мы предлагаем уникальное преимущество: свободная планировка для реализации ваших идей и готовый дизайн-проект в подарок, разработанный на основе одного из наших продуманных типовых планировочных решений.

Высота потолков 1 этаж
4,05
Комнат
Санузлов
Высота потолков 2 этаж
3,45
Гардеробных
Террас / балконов
4
3
3
3
1 этаж
2 этаж
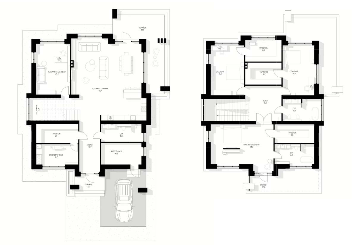
Тип резиденции M (348 кв.м.)
Материалы
Железобетон, теплая керамика (Paroterm 510), декоративная штукатурка, планкен термоясень, керамогранит, композитная черепица (Gerrard).
Общая площадь
347,7 м²
Парковочные места
2
Количество этажей
2
Планировка
Мы предлагаем уникальное преимущество: свободная планировка для реализации ваших идей и готовый дизайн-проект в подарок, разработанный на основе одного из наших продуманных типовых планировочных решений.

Высота потолков 1 этаж
4,05
Комнат
Санузлов
Высота потолков 2 этаж
3,45
Гардеробных
Террас / балконов
5
3
4
3
1 этаж
2 этаж
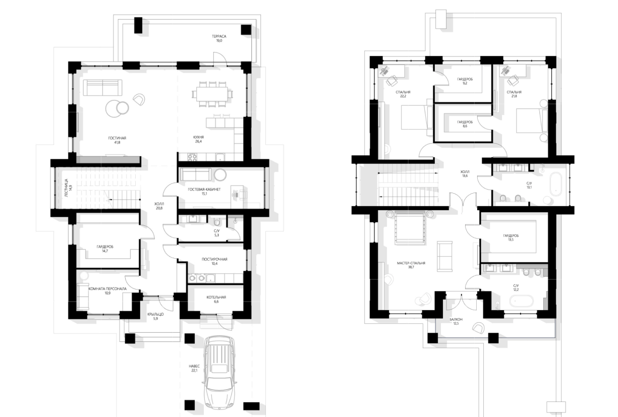
Тип резиденции L (379 кв.м.)
Материалы
Железобетон, теплая керамика (Paroterm 510), декоративная штукатурка, планкен термоясень, керамогранит, композитная черепица (Gerrard).
Общая площадь
379,1 м²
Парковочные места
2
Количество этажей
2
Планировка
Мы предлагаем уникальное преимущество: свободная планировка для реализации ваших идей и готовый дизайн-проект в подарок, разработанный на основе одного из наших продуманных типовых планировочных решений.

Высота потолков 1 этаж
4,05
Комнат
Санузлов
Высота потолков 2 этаж
3,45
Гардеробных
Террас / балконов
6
3
4
3
1 этаж
2 этаж
НОВЫЙ АРХИТЕКТУРНЫЙ ПРОЕКТ "СЕРДЦЕ РИГИ"
Оставьте заявку, и наши менеджеры свяжутся с вами и проконсультируют
СКАЧАТЬ ПРЕЗЕНТАЦИЮ ПРОЕКТА "СЕРДЦЕ РИГИ"
Скачайте подробную презентацию проекта в один клик (PDF)
ПОЛУЧИТЬ ПРЕДЛОЖЕНИЕ ПРОЕКТУ "СЕРДЦЕ РИГИ"
Оставьте заявку, и наши менеджеры направят вам коммерческое предложение